edição:Velho Conselheiro Ze de Mello a 10.10.08
Etiquetas:

Do blogue Ó mê belo Campo Maiore:

Faz alguns meses, houve um acidente (já houve mais…) na EN 373 que liga Campo Maior a Elvas, acidente no qual um pesado embateu contra umas baias de protecção, danificando as ditas, tal aconteceu num dos dois estreitamentos (estreitamento com curva) da referida estrada, o qual fica mais perto da cidade de Elvas, sendo que o outro se situa junto a Estação de Tratamento de Águas. Os frequentadores desta via identificarão de imediato o local e o acidente.

O certo é que já passaram alguns meses desde o acidente e essas mesmas baias continuam danificadas, sem nenhuma intervenção de fundo, apenas alguns sinais indicativos (já não é mau), os que conhecem o local sabem que é uma zona de muito perigo, é verdade que esta sinalizada, sendo o limite de velocidade de 50 km/h, porém aquelas baias podem salvar vidas, pois depois das mesmas só resta mesmo o abismo até ao solo que fica uns bons metros abaixo da ponte.

Passam naquela via centenas de veículos pesados e ligeiros durante o dia, o que quer dizer que o arranjo destas baias deveria ser uma urgência, de maneira a evitar males maiores.

As Câmaras de Elvas e Campo Maior, não podem ser acusadas directamente da não reparação do dito, porém cabe a estas intervir junto das autoridades competentes de maneira a que se proceda a reparação.
Os mais “espertos”, poderão dizer que o Município de Campo Maior nada têm a ver com isto, uma vez este local encontrar-se no Concelho de Elvas, correcto! Porém, são os Campomaiorenses e Elvenses quem mais usufruem desta via, como tal, compete às Câmaras “olhar” pelos seus munícipes. Digo mais, a culpa dos Municípios nesta estrada já vêm detrás, pois existia um projecto para o alongamento da mesma que não foi cumprido, se existia por algo seria, digo eu!

Mais vale prevenir do que evitar…esperemos que este problema tenha uma resolução breve!

Que acham desta situação?

Cumprimentos

edição:Velho Conselheiro Ze de Mello a 9.10.08
Etiquetas:


Ontem no Conclave do Palácio do Regedor, e sem que o assunto estivesse na agenda de trabalhos publicada no sitio institucional, o executivo liderado por Rondão Almeida, aprovou a redução do IMI (Municipal sobre Imóveis ) bem como a derrama.


Recordemos que esta proposta foi apresentada aos cidadãos pela coligação de direita nas últimas eleições locais e repetidamente recusada pelo partido maioritário. Segundo a nota de imprensa difundida, estas medidas: "vêm ao encontro das medidas preconizadas pelo Governo, para atenuar no nosso país os efeitos da crise financeira internacional, sobretudo ao nível da economia familiar." Este Velho Conselheiro saúda as medidas tomadas, esperando que estas sejam um incentivo aos empresários locais que sofrem cada dia mais as consequências da falta de estratégia comercial do Concelho.


Como última nota destaque para o facto de as politicas sociais do munícipio serem cada vez mais efectivas; assim neste mesmo Conclave foi decidido a isenção de pagamento de água aos portadores do Cartão da Idade de Ouro que tenham um consumo mensal até 3 metros cúbicos. Esperemos que me breve mesma medida seja aprovada para as famílias numerosas.

edição:Velho Conselheiro Ze de Mello a 8.10.08
Etiquetas: ,


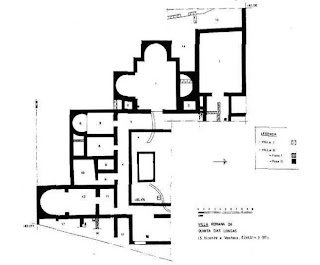
Ao longos da última década têm-se desenvolvido vários trabalhos arqueológico na villa romana da Quinta das Longas, perto do Povo de S. Vicente, aos quais o Palácio se tem associado através do fornecimento de vária logística necessária aos trabalhos dirigidos pelo arqueólogo António Carvalho.
Os trabalhos, que foram interrompidos por falta de apoios por parte do ex-IPA, fizeram surgir uma grande parte desta villa romana, com os seus mosaicos e até um conjunto de esculturas inédito na região. Sendo o principal núcleo testemunhal da ocupação romana do Concelho de Elvas, pergunta este Velho Conselheiro: Para quando a criação de um Centro Interpretativo da Vilae e do mundo romano no concelho de Elvas?

edição:Velho Conselheiro Ze de Mello a 7.10.08
Etiquetas:


O Palácio do Regedor esta a promover mais uma intervenção urbana na Cidade de Elvas, que vai transformar o modo de vida das populações da Belhó, com a criação de um espaço verde e diversos equipamentos sociais, num investimento de um milhão e meio de euros, ao longo da Ribeira do Cêto, até à uns anos esgoto da Cidade.

Dentro deste novo espaço será também construído um templo católico que, segundo alguns populares, será dedicado à Virgem de Fátima. Sabe este Velho Conselheiro que a imagem, a venerar nessa igreja, em mármore branco da região, será oferecida por uma importante personalidade do burgo, conhecido pela sua devoção mariana.

edição:Velho Conselheiro Ze de Mello a 6.10.08
Etiquetas:


Entre festas e foguetes o 2 º aniversário do Coliseu passou desapercebido a muita da população do Concelho. Fez dia 28 Setembro dois anos que Elvas viu e mostrou a todo o país o novo espaço multidisciplinar que viria marcar a agenda cultural do Alentejo e da Extremadura.

Recordando o édito que este Velho Conselheiro fez na data: "
Foi um dia de festa em Elvas com a inauguração do Coliseu, devidamente emoldurado pelo S. Mateus. Foi um dia em que todos os Elvenses se sentiram orgulhosos de mais uma obra, ou, da Obra do Regedor. As felicitações vão também para o próprio Rondão Almeida e para toda a sua equipa e trabalhadores do Palácio que concluiram as obras do Coliseu."

Passados dois anos, e só agora, é tempo de fazer uma primeira avaliação sobre o projecto. Muitos, e alguns bons, concertos musicais têm sido apresentados à população de Elvas e a toda a população da zona de influência do Coliseu. Eventos desportivos de nível internacional têm utilizado o recinto do Morgadinho, demonstrando a sua versatilidade, indo muito além do espectáculo tauromáquico, que ultimamente tem sido promocionado pelas forças vivas da Cidade.

Se numa primeira fase se pensou em concessionar a exploração do dito à iniciativa privada, rapidamente o Regedor se apercebeu que tal estrutura, numa cidade pobre do interior, não era apetecível aos promotores de eventos nacionais: «Até arranjaram a expressão “elefante branco” para o novo equipamento elvense. Sinceramente: se o Coliseu é um elefante, branco não é com certeza; tem muitas e variadas cores, tal a sua polivalência funcional.» Assim conclui Rondão Almeida o seu último editorial. Completa o Zé de Mello que espera pelo bem dos Elvenses que este não seja um "elefante arco-íris".», escreveu este Velho Conselheiro no 1º aniversário do Coliseu Cidade de Elvas.

Se a nível musical não tem faltado os grandes nomes da música popular e tradicional nacional, falta trazer de novo a Elvas nomes que possam interessar aos jovens e jovens-adultos demonstrando que a acção cultural do munícipio se destina a toda a população, ainda que esta seja cada vez menor e mais envelhecida. Neste terceiro ano de vida do Coliseu, espera-se ansiosamente a abertura dos bares do espaço que irão transformar as noites de Elvas, espera-se pelo concretizar da promessa de uma corrida de touros à antiga portuguesa, espera-se pela pista de gelo no Natal, espera-se pelos grandes nomes internacionais que atraiam os espanhóis, espera-se que este grande investimento do Regedor continue a ser uma bandeira da modernidade de e em Elvas.

edição:Velho Conselheiro Ze de Mello a 1.10.08
Etiquetas:


"...O blogue é um amplificador da voz individual e na medida do seu novo alcance a voz individual deixa de estar confinada a um espaço regulado pela lei geral. Logo, não vejo como evitar que, na passagem para um nível superior de intervenção pública, se não fique sujeito a um maior rigor quanto à forma. .."


Vale a pena ler o comentário completo no Expresso aqui

edição:Velho Conselheiro Ze de Mello a 30.9.08
Etiquetas:

O S. Mateus para os Elvenses significa estar em família, significa devoção, regresso a casa, encontro com os tempos vividos mas também um olhar para o futuro.
Nos últimos 25 anos a feira e arraial que se vive em redor do Santuário do S.J.Piedade tem sofrido transformações que mais não são que o reflexo da vida contemporânea. Uma vida que faz com que os "camponeses" regressem a Campo Maior depois dos Pendões ou ao fim de um serão de feira. Ir até ao Parque da Piedade era sempre uma pequena aventura e um dia especial. Hoje, mesmo desde as aldeias do concelho, em 15 a 20 minutos faz-se o percurso desde a casa de família até à Piedade. Olhar para a feira e romaria com uma perspectiva actual fará com que esta tenha mais ou menos pontos de interesse, consoante as expectativas pessoais de cada um.
A Romaria ao Senhor Jesus da Piedade e a Feira de S. Mateus são as Festas da Cidade. Ou tende a sê-lo, pois para além de uma ou outra exposição de carácter cultural, evento desportivo ou espectáculo tauromáquico, as actividades de festejo são inexistentes ou pouco significativas. Tornar o S. Mateus nas Festas da Cidade presupõe que toda a comunidade comungue do sentimento festivo proporcionando-lhes pontos de interesse também fora do recinto da feira.
Também este ano houve o que poderá vir a ser o S. Mateus Jovem. Um conjunto de concertos para a malta jovem, junto ao espaço lúdico e de bares da feira. O futuro do S. Mateus está nesta juventude que temos que "viciar" em estar e partilhar o parque da Piedade como um espaço de encontro. Dotar de atractivos vários o recinto para um público mais jovem é uma das prioridades que devem reger as entidades organizadoras.
Outra das transformações sofridas no último quartel foram as alterações urbanísticas que o recinto tem sido alvo. A construção da parte superior do parque, contigua à Av. de Badajoz, e a mais recente urbanização junto do Santuário transformaram o parque romântico do XIX num espaço que aos poucos se engloba na malha urbana da Cidade.
A falta de visão estratégica para a Cidade fez com que o parque da Piedade, e o seu entorno, fossem preteridos como localização excepcional para construção do espaço expositivo do Concelho e o mesmo tenha sido colocado nas Fontainhas, na rotunda da Av. da Europa. Recentemente, nos dois últimos anos, o Regedor tem expressado publicamente o seu desejo de adaptar o parque de feiras da Confraria num espaço moderno e adaptado às exigências dos utilizadores. Recordemos ainda que está prometido pelo executivo municipal a alargamento do Centro de Negócios Transfronteiriços, pois este considera que o espaço se tornou pequeno para alguns dos eventos ali realizados.
O entrelaçado de sinteses que acima postámos, serve para demonstrar que na Cidade de Elvas existem neste momento dois grandes pólos para realização de eventos: o CNT e o Parque da Piedade. Se o primeiro está destinado a albergar mostras e exposições ao longo do ano, já o Parque da Piedade tem como perfil ser o espaço de feiras, quer a quinzenal, a de Maio quer o S. Mateus. Numa óptica de concentração de circuitos urbanos teria sido mais vantajoso para a Cidade que o CNT tivesse sido erguido na zona da Piedade o qual poderia acolher agora a Expo que o Palácio do Regedor organiza dentro do S. Mateus "tradicional".
A pretensão de construir grandes naves que num futuro acolham feiras temáticas e sirvam para a Expo S. Mateus pode ser uma solução para dar uma maior dignidade ao evento, mas não podemos esquecer-nos que a decisão já é tardia e que a mesma deveria ter sido tomada há um par de anos atrás aquando da construção do CNT. A localização ideal dessas naves seria sempre remetida para a faixa de terreno que vai desde o Parque de Campismo até à Av. da Piedade criando assim uma nova zona expositiva que co-existisse com a tradicional feira.
Para terminar esta breve reflexão sobre o S. Mateus e o seu provenir, bem como a solução estratégica para o futuro do S. Mateus / Festas da Cidade e os futuros hipotéticos pavilhões talvés sejam estes também aqueles que num futuro acolham a Feira de Maio, transformada na grande montra das actividades económicas do Concelho num revivalismo da FACIPE.

edição:Velho Conselheiro Ze de Mello a 29.9.08
Etiquetas: ,



Enquanto estavamos pelas Festas da Cidade / S. Mateus'08, o Ministro da Defesa Nacional, Nuno Severiano Teixeira, apresentou a Lei de Programação e Infra-Estruturas Militares (LPIM), que tinha sido aprovada em Conselho de Ministros, na passada quinta-feira, por decreto-lei, e que traz novidades para a nossa Cidade.


Apesar de não ser conhecida a listagem completa, sabemos já pelos media nacionais que Elvas é o concelho com mais imóveis previstos na LPIM, com 18% do total.


Não se tratando de venda dos imóveis, mas sim da sua concessão por vários anos, uma das jóias da alienação, e claro, a jóia do património militar elvense, o Forte da Graça estará entre os edificios que serão disponibilizados aos agentes económicos.


Para este Velho Conselheiro esta oportunidade poderá ser a tábua de salvação para mais alguns edíficios do burgo. Recordemos que o Palácio do Regedor está à algum tempo tentando que o Governo da Nação lhe disponibilize por exemplo a antiga Manutenção Militar para aí instalar os Museus de Arquelogia e do Mundo Rural.


Quanto ao Forte da Graça esperemos que seja finalmente entregue a privados, ou quem sabe ao próprio Palácio do Regedor, e nele seja projectado uma utilidade privado-pública que permita dar vida áquele complexo e simultaneamente o devolva ao usofruto da população e de todos aqueles que visitam a nossa Elvas.

edição:Velho Conselheiro Ze de Mello a 26.9.08

Eu nasci no Alentejo


À beira do Guadiana


Sinto orgulho quando vejo


A paisagem Alentejana!





Uma malta da cidade


Chamou-me de provinciano


Eu tenho grande vaidade


De ter nascido alentejano!





Eu nasci no Alentejo


À beira do Guadiana


Sinto orgulho quando vejo


A paisagem Alentejana!




Ó Elvas, ó Elvas


Badajoz à vista.


Sou contrabandista


De amor e saudade


Transporto no peito


A minha cidade. A minha cidade. A minha cidade.

edição:Velho Conselheiro Ze de Mello a 25.9.08
Etiquetas: ,

SANTIAGO CAMBERO no Jornal HOY

Ayer se celebró la onomástica de san Mateo, iniciándose un periodo festivo en tantos pueblos y ciudades, anuncio de la estación otoñal. Este santo es patrono de aduaneros, loteros, estanqueros y recaudadores de hacienda. Mal asunto en tiempo de crisis económica y financiera... ¿Apiádate de nosotros!

Pero San Mateo también simboliza la querencia que algunos pacenses tenemos a Elvas. Localidad portuguesa a 11 kilómetros de Badajoz, que ahora disfruta de sus ferias fusionando tradición con modernidad, donde lo rural da paso a la globalización en su mercado cosmopolita. Compruébelo. Elvas siempre fue lugar de peregrinación para aquellos que se deleitan con buenas viandas marineras con sabor a bacalhau del Atlántico. Quizás ya menos para comprar la mantelería del ajuar. Lo más lamentable, es reconocer que a pesar de este intercambio comercial fluido, la mayoría de quienes residimos en esta parte de la Raya aún vivimos de espalda a la región portuguesa del Alentejo. Quizás esa afirmación deba matizarse desde la perspectiva sociológica de lo transfronterizo, pero si resaltaré ciertas notas etnográficas fruto de mi observación y conversaciones con miembros de la colonia española en Portugal -principalmente, jóvenes extremeños desplazados por motivos laborales-. Lo primero es el grado de desconfianza que presentan hacia los españoles. Por otro lado, nosotros no manifestamos interés por conocer la cultura y lengua lusa. Quizás las diferencias socio-históricas decimonónicas entre la sociedad portuguesa y española, influidas por intereses de Inglaterra y Francia en sendos territorios, impidan hoy el rebrote del llamado 'iberismo'. A todo esto, unas instituciones locales que no apuestan firmemente por la cooperación transfronteriza, en especial, desde el ámbito municipal como demuestran las autoridades de Badajoz. ¿En que estado se encuentra el proyecto de eurociudad Elvas-Badajoz? ¿Y la eurocomarca Alentejo-Extremadura? ¿Por qué no compartir servicios públicos (sanitarios, infraestructuras del AVE, etc.) en Caya? Tantas cuestiones sin respuestas Dixit.

edição:Velho Conselheiro Ze de Mello a 24.9.08
Etiquetas:


Conheces uma figura que marcou a história local ou do país com raízes elvenses?
então a tua ajuda é bem-vinda!
Sendo um sitio de construção permanente a ajuda de todos é essencial para que a história de Elvas passe também pelos que a fizeram prestando-lhes uma humilde homengem nesta galeria de notáveis.
Para tal basta enviar uma resenha bibliográfica dessa figura para o mail zedemelo@gmail.com e colocaremos online mais um Grande Elvense graças a ti.

http://osgrandeselvenses.blogspot.com

edição:Velho Conselheiro Ze de Mello a 23.9.08
Etiquetas: , ,

A poucos dias de comemorar dois anos o pavilhão multiuso elvense encheu-se no passado domingo para a primeira das duas corridas de toiros que fazem parte das Festas da Cidade / S. Mateus'08. Foi casa cheia, algo que há muito não se via naquele espaço.

No próximo dia 26 será a vez da Dinastia Moura rumar até ao Coliseu de Elvas para uma corrida de angariação de fundos para os Bombeiros Voluntários de Elvas. Espera este Velho Conselheiro que desta vez a população vá em massa apoiar os soldados da paz elvense.

Search